816 E 9th S Street

$210,000 – Ladysmith, WI

MLS#: 1597088

Active

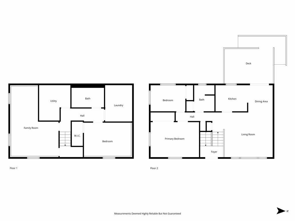
Nestled in a friendly neighborhood, this 3-bed, 2-bath home with a large garage is ready for you to make it your own! Upper level has two bedrooms and an open living/dining area with a nice laminate floor. Lower level has a luxurious, newly-renovated bathroom and a large, tiled family room that could be used as a primary bedroom. Relax on the deck overlooking your spacious yard or stroll past your beautiful lilac bush to enjoy the quiet streets and the walking trails along the Flambeau River. Easy access to Highway 8 and 27. Call today for a showing!

TOUR THIS PROPERTY

County: 

Rusk

School: 

Ladysmith

Beds: 

3

Baths F/H: 

2/0

Abv Grd: 

962 sq. ft.

Blw Grd: 

862 sq. ft.

Year Built: 

1980

Age: 

45 Years

Type: 

Single Family Residence

Garage: 

2 Car Car

Lot Size: 

150 x 118

Acres: 

0.41

Taxes: 

$1,666

Tax Year: 

2024

Property Features

Basement: Egress Windows, Full, Partially Finished
Cooling: None
Electric: Circuit Breakers
Fireplace: N
Foundation: Poured
Heating: Forced Air
Sewer Service: Public Sewer
Water Service: Public

Room Properties

Room

 

Size

 

Level

Living Room

 

19 x 15

 

UPPER

Dining Room

 

8 x 8

 

UPPER

Kitchen

 

10 x 8

 

UPPER

Bedroom #1

 

16 x 11

 

LOWER

Bedroom #2

 

11 x 8

 

UPPER

Bedroom #3

 

16 x 11

 

UPPER

Bathroom #1

 

8 x 7

 

UPPER

Bathroom #2

 

10 x 7

 

LOWER

Family Room

 

15 x 23

 

LOWER

Laundry Room

 

9 x 11

 

LOWER

Directions
Hwy 8 east to south on 2nd St S to left on Lindoo to right on 9th St South. Sign on property.

Listing Agent
Zachary Spooner

Listing Agency
Edina Realty, Corp. - Hudson

Loading Map...

View Larger Map »

Click for a larger view.
Ladysmith Residential Real Estate Ladysmith Residential Real Estate Ladysmith Residential Real Estate Ladysmith Residential Real Estate Ladysmith Residential Real Estate Ladysmith Residential Real Estate Ladysmith Residential Real Estate Ladysmith Residential Real Estate Ladysmith Residential Real Estate Ladysmith Residential Real Estate Ladysmith Residential Real Estate Ladysmith Residential Real Estate Ladysmith Residential Real Estate Ladysmith Residential Real Estate Ladysmith Residential Real Estate Ladysmith Residential Real Estate Ladysmith Residential Real Estate Ladysmith Residential Real Estate Ladysmith Residential Real Estate Ladysmith Residential Real Estate Ladysmith Residential Real Estate Ladysmith Residential Real Estate Ladysmith Residential Real Estate Ladysmith Residential Real Estate Ladysmith Residential Real Estate Ladysmith Residential Real Estate Ladysmith Residential Real Estate Ladysmith Residential Real Estate Ladysmith Residential Real Estate Ladysmith Residential Real Estate Ladysmith Residential Real Estate Ladysmith Residential Real Estate Ladysmith Residential Real Estate Ladysmith Residential Real Estate Ladysmith Residential Real Estate Ladysmith Residential Real Estate

The data relating to real estate for sale on this web site comes in part from the Internet Data Exchange program of the NW WI MLS. Real estate listings held by brokerage firms other than Haselwander Real Estate are marked with the NW WI MLS icon.

The information, provided by seller, listing broker, and other parties, may not have been verified.

DISCLAIMER: This information is provided exclusively for consumers' personal, non-commercial use and may not be used for any purpose other than to identify prospective properties consumers may be interested in purchasing.

This data is updated every business day. Some properties which appear for sale on this web site may subsequently have sold and may no longer be available.