7649N Fishtrap Lake Rd
$379,000 – Winter, WI
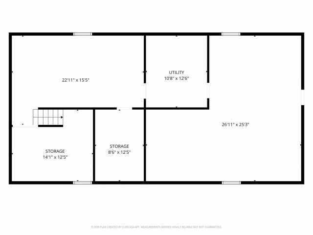
Located near Winter, WI and just 40 minutes from Hayward, this private 3-bedroom, 2-bath home on 40+ acres offers the kind of space, views, and flexibility that are getting harder to find. With approximately 2,500 square feet of finished living space, the home features an open concept living, dining, and kitchen area designed for comfortable everyday living and easy gathering. The main level also includes a primary suite, first-floor laundry, and a bright 3-season sun room filled with windows and gorgeous views over the property. The partially finished walkout lower level adds even more usable space, including a large family room, heated workshop area, and a generous storage room with shelving. Whether you want hobby space, room for projects, extra recreation space, or simply more storage, this lower level gives you options. The setting is a major part of what makes this property stand out. More than 40 acres offer a beautiful mix of wooded land, open yard, and a wildlife pond/marsh area. The wooded acreage is mostly high ground and well suited for hiking, exploring, and possibly hunting, while the marsh and pond area draw in abundant wildlife and create peaceful, ever-changing views. If privacy matters to you, this property delivers, while still offering convenient year-round access and proximity to area amenities. Recent improvements include a new roof on the home, new flooring on the main level, new gutters, & new decks, helping make the property feel well cared for & move-in ready. Additional features include forced air heat, central air, DSL internet w/satellite also available, a detached 2-car garage, & a 16x24 storage building. Located near many area lakes and close to snowmobile and ATV trails, this property offers an appealing combination of comfortable living, recreational access, and peaceful Northwoods surroundings. Whether you're looking for a full-time home or a private getaway, this property offers the space and setting to make it happen.
|
|


TOUR THIS PROPERTY
|
Call (715) 831-7077
Email
|


|
County:
|
Sawyer
|
|
School:
|
Winter
|
|
Beds:
|
3
|
|
Baths F/H:
|
2/0
|
|
Abv Grd:
|
1,568 sq. ft.
|
|
Blw Grd:
|
800 sq. ft.
|
|
Year Built:
|
2001
|
|
Age:
|
25 Years
|
|
|
Style:
|
1
|
|
Type:
|
Single Family Residence
|
|
Garage:
|
2 Car Car
|
|
Lot Size:
|
0 x 0
|
|
Acres:
|
41.42
|
|
Taxes:
|
$1,482
|
|
Tax Year:
|
2025
|
|
Property Features
Basement: Full, Partially Finished, Walk Out Access
Cooling: Central Air
Electric: Circuit Breakers
Fireplace: Y
Foundation: Poured
Heating: Forced Air
Out Buildings: Sheds
Patio/Deck: Deck, Enclosed, Three Season
Sewer Service: Septic Tank
Water Service: Drilled Well
Zoning: Recreational, Residential
|


|
Room Properties
|
Room
|
|
Size
|
|
Level
|
|
Living Room
|
|
13 x 22
|
|
MAIN
|
|
Dining Room
|
|
13 x 9
|
|
MAIN
|
|
Kitchen
|
|
13 x 8
|
|
MAIN
|
|
Bedroom #1
|
|
13 x 12
|
|
MAIN
|
|
Bedroom #2
|
|
10 x 10
|
|
MAIN
|
|
Bedroom #3
|
|
13 x 13
|
|
MAIN
|
|
Bathroom #1
|
|
5 x 9
|
|
MAIN
|
|
Bathroom #2
|
|
5 x 9
|
|
MAIN
|
|
Family Room
|
|
23 x 15
|
|
LOWER
|
|
Laundry Room
|
|
5 x 9
|
|
MAIN
|
|
Includes
Dryer, Dishwasher, Microwave, Oven, Range, Refrigerator, Washer
Excludes
Sellers Personal
Directions
Off of Hwy B near Winter, go north on Fishtrap Lake Road. Follow Fishtrap Lake Road approx. 2 miles to driveway on left. If you get to the 90 degree corner and intersection of Sagert Road, you
Listing Agent
Audrey Miller
Listing Agency
Northwest Wisconsin Realty Team
|
|
|
|
 |