W2294 Highway 70

$249,000 – Spooner, WI

MLS#: 1599540

Active

If you’ve been waiting for the “one that checks every box,” this is it: 38 acres of high-quality, buildable Northwoods ground that borders 9,000+ acres of Washburn County Forest—meaning your backyard effectively opens into thousands of acres to hunt, roam, and explore. The land hasn’t been logged in over 30 years, and it shows. Mature hardwoods create a gorgeous, established forest feel with privacy and natural beauty, while also providing the kind of cover and food sources that make this a serious whitetail property—the type of place known for big-buck potential. With existing trails, a cleared area for a food plot, and nearly all high and dry acreage, you’ll appreciate how usable this land is—whether your plan is hunting, recreation, or building a future cabin/home. And then there’s the bonus: a 4-season cabin with easy road access—perfect as a hunting base, weekend getaway, or income-producing rental—with woodstove, LP gas furnace, drilled well, holding tank septic, full bath, and plenty of living space. If you want great timber, great ground, and endless public land out the back, you’ll want to see this one.

TOUR THIS PROPERTY

County: 

Washburn

School: 

Spooner Area

Beds: 

2

Baths F/H: 

1/0

Abv Grd: 

720 sq. ft.

Style: 

1

Type: 

Single Family Residence

Lot Size: 

0 x 0

Acres: 

38.13

Taxes: 

$0

Tax Year: 

2025

Property Features

Basement: None
Cooling: None
Electric: Circuit Breakers
Fireplace: Y
Foundation: Block
Heating: Forced Air
Out Buildings: Sheds
Patio/Deck: Deck
Sewer Service: Holding Tank, Septic Tank
Water Service: Drilled Well
Zoning: Agricultural

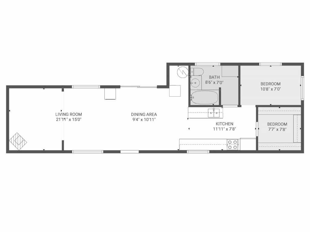
Room Properties

Room

 

Size

 

Level

Living Room

 

21 x 15

 

MAIN

Dining Room

 

10 x 15

 

MAIN

Kitchen

 

12 x 8

 

MAIN

Bedroom #1

 

7.50 x 7.50

 

MAIN

Bedroom #2

 

10 x 7

 

MAIN

Bathroom #1

 

8 x 7

 

MAIN

Includes
Oven, Range

Excludes
Lp Tank, Sellers Personal

Directions
From Spooner, go east on Hwy 70 less than 10 miles to property on left hand side of road. The best trail for access to the land is at the west edge of the property. All showings must be scheduled in Showing Time and agent must accompany buyer.

Listing Agent
Audrey Miller

Listing Agency
Northwest Wisconsin Realty Team

Loading Map...

View Larger Map »

Click for a larger view.
Spooner Residential Real Estate Spooner Residential Real Estate Spooner Residential Real Estate Spooner Residential Real Estate Spooner Residential Real Estate Spooner Residential Real Estate Spooner Residential Real Estate Spooner Residential Real Estate Spooner Residential Real Estate Spooner Residential Real Estate Spooner Residential Real Estate Spooner Residential Real Estate Spooner Residential Real Estate Spooner Residential Real Estate Spooner Residential Real Estate Spooner Residential Real Estate Spooner Residential Real Estate Spooner Residential Real Estate Spooner Residential Real Estate Spooner Residential Real Estate Spooner Residential Real Estate Spooner Residential Real Estate Spooner Residential Real Estate Spooner Residential Real Estate Spooner Residential Real Estate Spooner Residential Real Estate Spooner Residential Real Estate Spooner Residential Real Estate Spooner Residential Real Estate Spooner Residential Real Estate Spooner Residential Real Estate Spooner Residential Real Estate Spooner Residential Real Estate Spooner Residential Real Estate Spooner Residential Real Estate Spooner Residential Real Estate Spooner Residential Real Estate Spooner Residential Real Estate Spooner Residential Real Estate Spooner Residential Real Estate Spooner Residential Real Estate Spooner Residential Real Estate Spooner Residential Real Estate Spooner Residential Real Estate Spooner Residential Real Estate Spooner Residential Real Estate

Additional Information

View A Virtual Tour

The data relating to real estate for sale on this web site comes in part from the Internet Data Exchange program of the NW WI MLS. Real estate listings held by brokerage firms other than Haselwander Real Estate are marked with the NW WI MLS icon.

The information, provided by seller, listing broker, and other parties, may not have been verified.

DISCLAIMER: This information is provided exclusively for consumers' personal, non-commercial use and may not be used for any purpose other than to identify prospective properties consumers may be interested in purchasing.

This data is updated every business day. Some properties which appear for sale on this web site may subsequently have sold and may no longer be available.