10745 N First Avenue
$349,900 – Hayward, WI
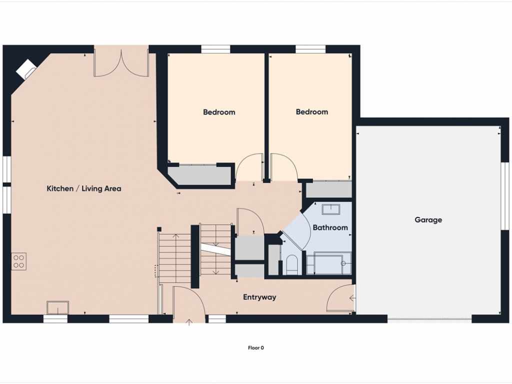
3 bedroom, 2 bath brick facade home located in the City of Hayward directly across the street from Smith Creek. The welcoming covered front porch is perfect for relaxing summer afternoons, while the 12x10 back deck with pergola and fenced backyard creates a great space for outdoor entertaining or quiet evenings at home. Step inside to a tiled entryway featuring a built in bench and coat nook that creates a convenient drop zone just off the attached 1 car (20x15) garage. The main level offers a nicely updated kitchen with stainless steel appliances and refreshed cabinetry that opens to the vaulted living room highlighted by a gas fireplace with beautiful cultured stone. Two bedrooms and a full bathroom are also located on this level. The upper loft serves as a spacious and private primary bedroom filled with natural light from skylight windows and offers plenty of room to create your own personal retreat. The lower level features a comfortable recreation and family room, a flexible bonus room that works well as an office or hobby space, a second full bathroom, and a generous laundry and utility area. Throughout the home you will find an impressive amount of storage with cleverly designed closets and under stair spaces that make great use of every square foot. Conveniently located near downtown Hayward, the Hayward Golf Course, area schools, and the city walking path, this home offers easy access to many of the community's favorite amenities. Virtual tour, property video and floor plans: upnorthtours.net/j1598938
|
|


TOUR THIS PROPERTY
|
Call (715) 831-7077
Email
|


|
County:
|
Sawyer
|
|
School:
|
Hayward Community
|
|
Beds:
|
3
|
|
Baths F/H:
|
2/0
|
|
Abv Grd:
|
1,476 sq. ft.
|
|
Blw Grd:
|
836 sq. ft.
|
|
Year Built:
|
1990
|
|
Age:
|
36 Years
|
|
|
Type:
|
Single Family Residence
|
|
Garage:
|
1 Car Car
|
|
Lot Size:
|
150 x 150 x 150 x 150
|
|
Acres:
|
0.26
|
|
Taxes:
|
$2,684
|
|
Tax Year:
|
2025
|
|
Property Features
Basement: Full, Finished
Cooling: Central Air
Electric: Circuit Breakers
Exterior: Fence, Play Structure
Fireplace: Y
Foundation: Block
Heating: Forced Air
Out Buildings: None
Patio/Deck: Covered, Deck, Open, Porch
Sewer Service: Public Sewer
Water Service: Public
Zoning: Residential
|


|
Room Properties
|
Room
|
|
Size
|
|
Level
|
|
Living Room
|
|
14 x 16
|
|
MAIN
|
|
Dining Room
|
|
9 x 5
|
|
MAIN
|
|
Kitchen
|
|
14 x 11
|
|
MAIN
|
|
Bedroom #1
|
|
16 x 11.60
|
|
UPPER
|
|
Bedroom #2
|
|
13.70 x 9
|
|
MAIN
|
|
Bedroom #3
|
|
13.70 x 11
|
|
MAIN
|
|
Bathroom #1
|
|
8 x 9
|
|
LOWER
|
|
Bathroom #2
|
|
7.90 x 8
|
|
MAIN
|
|
Laundry Room
|
|
10 x 12
|
|
LOWER
|
|
Office Space
|
|
11.30 x 15
|
|
LOWER
|
|
Includes
Dryer, Dishwasher, Electric Water Heater, Microwave, Other, Oven, Range, Refrigerator, See Remarks, Washer
Excludes
Hot Tub, Other-See Remarks, Sellers Personal
Directions
From Hayward: North on Main Street and continue onto Nyman Ave to a left on Radio Hill Rd to a right on First Ave to the property on the left.
Legal
Prt SENE Lot 1 CSM 17/208 #5353
Listing Agent
Jeremy Mavis
Listing Agency
Woodland Developments & Realty
|
|
|
|
 |