8023 Park Street
$499,900 – Danbury, WI
Beautifully remodeled 4 season 3 BR, 1 BA lake cottage offering the perfect Northwoods retreat with most furnishings included! Private 2.7 acre setting (2.19 acre back lot for potential future expansion) with desirable southern exposure and peaceful wooded surroundings. Extensive updates from 2010 to present including LP Smart Side siding, architectural shingles, covered entry porch, ledgestone chimney, lakeside deck and 1 stall garage. Warm and inviting interior features engineered maple floors, pine interior walls, vaulted ceilings and skylights that bring in abundant natural light. Dedicated hearth area with wood storage nook and existing chimney provides the opportunity to easily add a freestanding wood stove if desired, along with a stunning wall of lakeside windows with gridded transoms above. Custom staircase leads to sleeping loft, along with two main floor bedrooms featuring built-in beds and bunks. Main floor laundry and thoughtful built-in storage throughout. Separate cedar shake lakeside guest house with rustic interior plus a cozy sun porch with LP gas fireplace perfect for relaxing evenings. Enjoy 102’ of rip-rap and sand shoreline, a beautiful plateau at the water’s edge, horseshoe dock and lakeside shed with power. Tram system provides convenient access between the cabin and shoreline. Direct access to UTV trails right out the back door and two bar/restaurants on the lake just a short boat ride away. Endless boating, fishing and swimming on sought-after Yellow Lake!
|
|


TOUR THIS PROPERTY
|
Call (715) 831-7077
Email
|


|
County:
|
Burnett
|
|
School:
|
Webster
|
|
Beds:
|
3
|
|
Baths F/H:
|
1/0
|
|
Abv Grd:
|
862 sq. ft.
|
|
Year Built:
|
1940
|
|
Age:
|
86 Years
|
|
|
Type:
|
Single Family Residence
|
|
Garage:
|
1 Car Car
|
|
Lot Size:
|
100 x 261 x 155 x 657
|
|
Acres:
|
2.7
|
|
Taxes:
|
$2,156
|
|
Tax Year:
|
2025
|
|
Property Features
Basement: Crawl Space
Cooling: Wall Units, Wall Window Units
Electric: Circuit Breakers
Exterior: Dock
Fireplace: Y
Foundation: Block
Heating: Baseboard, Wall Furnace
Out Buildings: Guest House, Other, Sheds, See Remarks
Patio/Deck: Concrete, Covered, Deck, Open, Patio, Porch
Sewer Service: Septic Tank
Water Service: Private, Sand Point Well, Well
Zoning: Residential, Shoreline
Waterfront: 102 feet on Yellow Lake
|


|
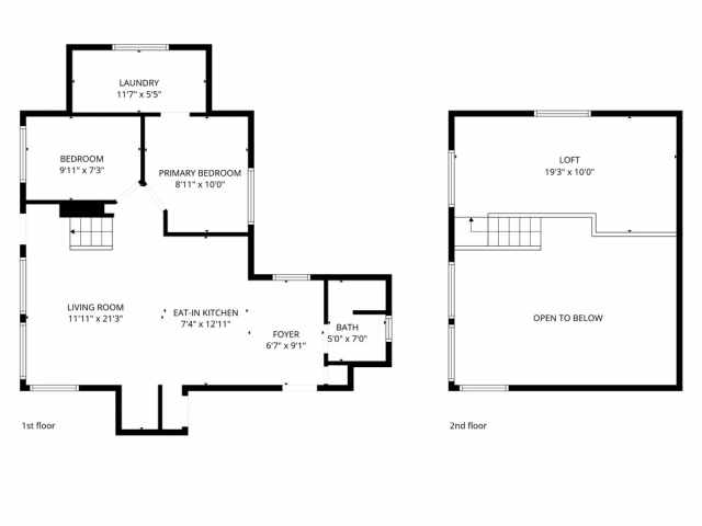
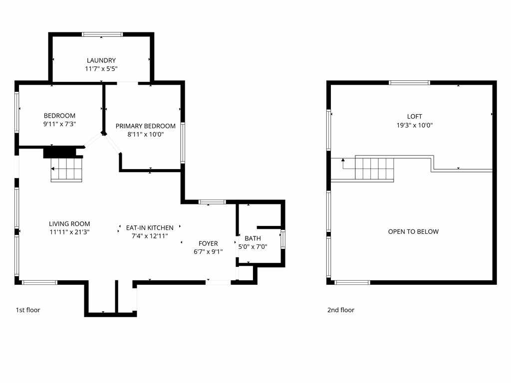
Room Properties
|
Room
|
|
Size
|
|
Level
|
|
Living Room
|
|
11 x 21.30
|
|
MAIN
|
|
Dining Room
|
|
7.40 x 12
|
|
MAIN
|
|
Kitchen
|
|
7.40 x 12
|
|
MAIN
|
|
Bedroom #1
|
|
19.30 x 10
|
|
UPPER
|
|
Bedroom #2
|
|
9 x 7.30
|
|
MAIN
|
|
Bedroom #3
|
|
8 x 10
|
|
MAIN
|
|
Bathroom #1
|
|
5 x 7
|
|
MAIN
|
|
Laundry Room
|
|
11.70 x 5.50
|
|
MAIN
|
|
Includes
Dryer, Electric Water Heater, Freezer, Microwave, Oven, Range, Refrigerator, Washer
Excludes
Lp Tank, Other-See Remarks, Sellers Personal
Directions
Take WI-77 W to Co Rd U (55.9 mi), continue to Park St (1.7 mi), turn right onto Co Rd U (1.2 mi), turn left onto Grimes Rd, continue onto Park St, turn left onto Lake Ave, turn right onto Park St to Fire #8023. 2nd lot diagonally from east line
Legal
JENSEN'S LAKESHORE DIV OF YELLOW LAKE LOT 1 & 2 BLK 10 and LOT 1 CSM V26 P31(GL 4) (FRMLY PT JENSEN'S LKSH DIV YELLOW LK), S19/T40N/R16W
Listing Agent
Ty Wiley
Listing Agency
Area North Realty Inc
|
|
|
|
 |