10471 N Scarlet Tanager Lane

$475,000 – Hayward, WI

MLS#: 1598164

Active

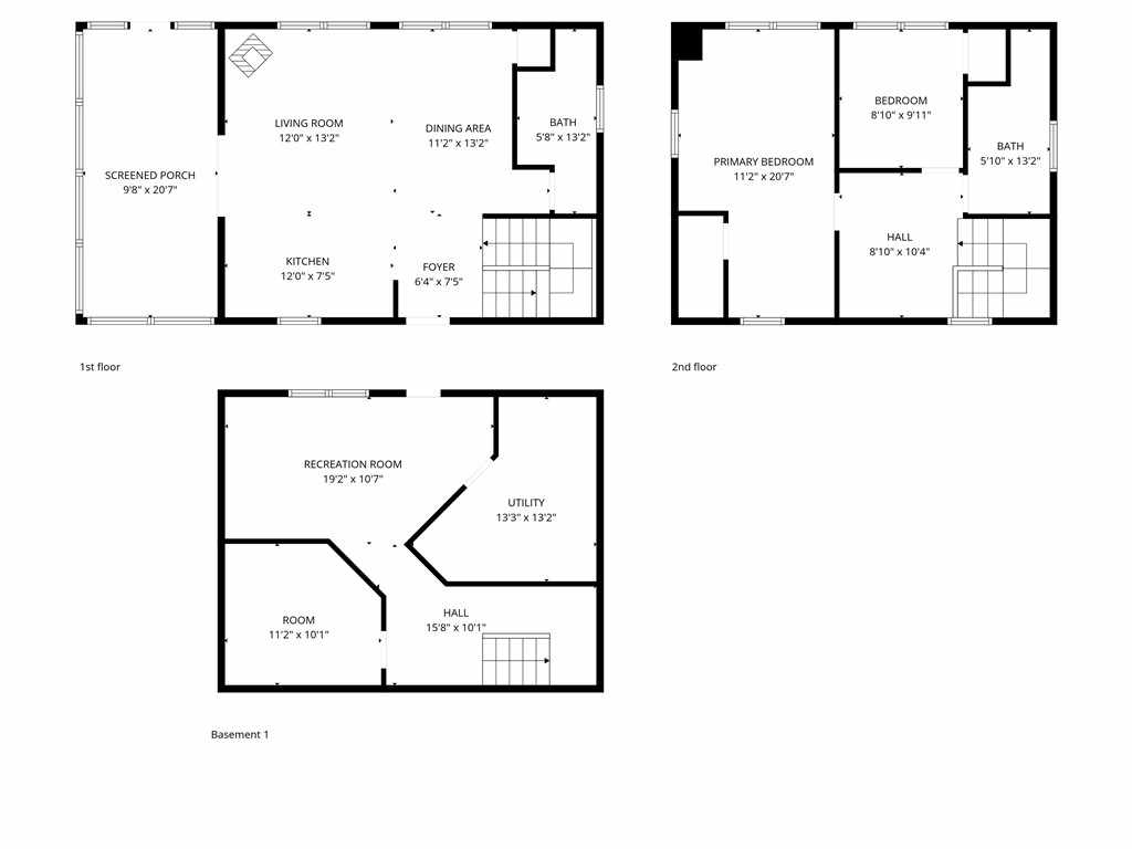
Beautiful timber-framed Adirondack-style home with creek frontage located between Round Lake and Lovejoy Lake. This well-maintained property offers three bedrooms and two full baths, featuring warm wood finishes and classic cabin character throughout. The main level includes an inviting living area with a wood stove, an open layout, and access to a large screened porch, covered porch, and expansive deck with scenic views. The full walkout lower level provides additional living space and storage options. Exterior amenities include a three-car detached garage, a well-built wood shed, and generous outdoor areas for recreation and relaxation. The property is within walking distance of Lakeview Golf Course and only minutes from Round Lake, offering convenient access to local amenities and outdoor activities. A rare opportunity to own a quality timber-frame home in a desirable Northwoods setting.

TOUR THIS PROPERTY

County: 

Sawyer

School: 

Hayward Community

Beds: 

3

Baths F/H: 

2/0

Abv Grd: 

1,300 sq. ft.

Blw Grd: 

500 sq. ft.

Year Built: 

2004

Age: 

22 Years

Style: 

2

Type: 

Single Family Residence

Garage: 

3 Car Car

Lot Size: 

0 x 0

Acres: 

1.72

Taxes: 

$2,540

Tax Year: 

2025

Property Features

Basement: Full, Walk Out Access
Cooling: None
Electric: Circuit Breakers
Fireplace: Y
Foundation: Block
Heating: Forced Air
Patio/Deck: Deck, Enclosed, Open, Porch, Screened
Sewer Service: Septic Tank
Water Service: Drilled Well
Zoning: Recreational, Residential
Waterfront: 185 feet Creek

Room Properties

Room

 

Size

 

Level

Living Room

 

20 x 10

 

MAIN

Dining Room

 

14 x 10

 

MAIN

Kitchen

 

14 x 10

 

MAIN

Bedroom #1

 

10 x 9

 

LOWER

Bedroom #2

 

12 x 10

 

UPPER

Bedroom #3

 

14 x 10

 

UPPER

Bathroom #1

 

9 x 6

 

UPPER

Bathroom #2

 

9 x 6

 

MAIN

Laundry Room

 

8 x 8

 

LOWER

Other Room

 

10 x 16

 

MAIN

Includes
Electric Water Heater, Oven, Range, Refrigerator

Excludes
Sellers Personal

Directions
Hwy B to Mc Claine Rd. Left onto Sandy Beach Rd. Right onto Scarlet Tanager Rd to fire #10471 on right.

Legal
Prt govt lot 1, lot 3 csm 23/265 #6429

Listing Agent
Ty Wiley

Listing Agency
Area North Realty Inc

Loading Map...

View Larger Map »

Click for a larger view.
Hayward Residential Real Estate Hayward Residential Real Estate Hayward Residential Real Estate Hayward Residential Real Estate Hayward Residential Real Estate Hayward Residential Real Estate Hayward Residential Real Estate Hayward Residential Real Estate Hayward Residential Real Estate Hayward Residential Real Estate Hayward Residential Real Estate Hayward Residential Real Estate Hayward Residential Real Estate Hayward Residential Real Estate Hayward Residential Real Estate Hayward Residential Real Estate Hayward Residential Real Estate Hayward Residential Real Estate Hayward Residential Real Estate Hayward Residential Real Estate Hayward Residential Real Estate Hayward Residential Real Estate Hayward Residential Real Estate Hayward Residential Real Estate Hayward Residential Real Estate Hayward Residential Real Estate Hayward Residential Real Estate Hayward Residential Real Estate Hayward Residential Real Estate Hayward Residential Real Estate Hayward Residential Real Estate Hayward Residential Real Estate Hayward Residential Real Estate Hayward Residential Real Estate Hayward Residential Real Estate Hayward Residential Real Estate Hayward Residential Real Estate Hayward Residential Real Estate Hayward Residential Real Estate Hayward Residential Real Estate Hayward Residential Real Estate Hayward Residential Real Estate Hayward Residential Real Estate Hayward Residential Real Estate Hayward Residential Real Estate Hayward Residential Real Estate Hayward Residential Real Estate Hayward Residential Real Estate Hayward Residential Real Estate Hayward Residential Real Estate

The data relating to real estate for sale on this web site comes in part from the Internet Data Exchange program of the NW WI MLS. Real estate listings held by brokerage firms other than Haselwander Real Estate are marked with the NW WI MLS icon.

The information, provided by seller, listing broker, and other parties, may not have been verified.

DISCLAIMER: This information is provided exclusively for consumers' personal, non-commercial use and may not be used for any purpose other than to identify prospective properties consumers may be interested in purchasing.

This data is updated every business day. Some properties which appear for sale on this web site may subsequently have sold and may no longer be available.