711 S Wisconsin Street

$340,000 – Fall Creek, WI

MLS#: 1597840

Active w/ Offer

Welcome to this inviting 3+ bedroom, 2-bath home located just steps from the school in the heart of Fall Creek—a location that truly makes everyday life easier for families. From the moment you walk in, you’ll appreciate the abundance of natural light and the comfortable layout designed for both gathering and quiet moments. The kitchen and bathrooms have been updated within the last 5 years, offering modern convenience while still feeling like home. New carpet in 2022 adds a cozy touch, and the 1-car attached garage provides extra convenience year-round. Enjoy peace of mind with drain tile installed around the entire home in 2013. Step outside to your own backyard retreat featuring a new above-ground pool (2023)—perfect for summer fun, weekend barbecues, and making memories with friends and family. This move-in-ready home is more than just a house—it’s a place to grow, connect, and belong. Make the move to Fall Creek and become part of the Cricket family, where strong schools, friendly neighbors, and small-town charm make it a wonderful place to call home.

TOUR THIS PROPERTY

County: 

Eau Claire

School: 

Fall Creek

Beds: 

4

Baths F/H: 

2/0

Abv Grd: 

1,016 sq. ft.

Blw Grd: 

752 sq. ft.

Year Built: 

1976

Age: 

50 Years

Type: 

Single Family Residence

Garage: 

1 Car Car

Lot Size: 

0 x 0

Acres: 

0.24

Taxes: 

$3,546

Tax Year: 

2025

Property Features

Basement: Finished
Cooling: Central Air
Electric: Circuit Breakers
Fireplace: N
Foundation: Block, Poured
Heating: Forced Air
Patio/Deck: Deck
Sewer Service: Public Sewer
Water Service: Public

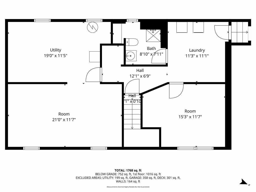
Room Properties

Room

 

Size

 

Level

Living Room

 

15 x 14

 

MAIN

Dining Room

 

10 x 10

 

MAIN

Kitchen

 

8 x 10

 

MAIN

Bedroom #1

 

15 x 11

 

LOWER

Bedroom #2

 

13 x 10

 

MAIN

Bedroom #3

 

9 x 14

 

MAIN

Bedroom #4

 

11 x 11

 

MAIN

Bathroom #1

 

8 x 7

 

LOWER

Bathroom #2

 

5 x 10

 

MAIN

Laundry Room

 

11 x 11

 

LOWER

Includes
Dryer, Dishwasher, Microwave, Oven, Range, Refrigerator, Washer

Excludes
Sellers Personal

Directions
From Eau Claire- East on Hwy 12 to Fall Creek- Right on S Wisconsin St- Property on Right

Legal
Lot 5 st. john's add vil of fall creek

Listing Agent
Courtney Kneifl

Listing Agency
Luxe Realty

Loading Map...

View Larger Map »

Click for a larger view.
Fall Creek Residential Real Estate Fall Creek Residential Real Estate Fall Creek Residential Real Estate Fall Creek Residential Real Estate Fall Creek Residential Real Estate Fall Creek Residential Real Estate Fall Creek Residential Real Estate Fall Creek Residential Real Estate Fall Creek Residential Real Estate Fall Creek Residential Real Estate Fall Creek Residential Real Estate Fall Creek Residential Real Estate Fall Creek Residential Real Estate Fall Creek Residential Real Estate Fall Creek Residential Real Estate Fall Creek Residential Real Estate Fall Creek Residential Real Estate Fall Creek Residential Real Estate Fall Creek Residential Real Estate Fall Creek Residential Real Estate Fall Creek Residential Real Estate Fall Creek Residential Real Estate Fall Creek Residential Real Estate Fall Creek Residential Real Estate Fall Creek Residential Real Estate Fall Creek Residential Real Estate Fall Creek Residential Real Estate Fall Creek Residential Real Estate Fall Creek Residential Real Estate Fall Creek Residential Real Estate Fall Creek Residential Real Estate Fall Creek Residential Real Estate Fall Creek Residential Real Estate Fall Creek Residential Real Estate Fall Creek Residential Real Estate Fall Creek Residential Real Estate Fall Creek Residential Real Estate Fall Creek Residential Real Estate Fall Creek Residential Real Estate Fall Creek Residential Real Estate Fall Creek Residential Real Estate Fall Creek Residential Real Estate Fall Creek Residential Real Estate Fall Creek Residential Real Estate Fall Creek Residential Real Estate Fall Creek Residential Real Estate Fall Creek Residential Real Estate Fall Creek Residential Real Estate Fall Creek Residential Real Estate Fall Creek Residential Real Estate

The data relating to real estate for sale on this web site comes in part from the Internet Data Exchange program of the NW WI MLS. Real estate listings held by brokerage firms other than Haselwander Real Estate are marked with the NW WI MLS icon.

The information, provided by seller, listing broker, and other parties, may not have been verified.

DISCLAIMER: This information is provided exclusively for consumers' personal, non-commercial use and may not be used for any purpose other than to identify prospective properties consumers may be interested in purchasing.

This data is updated every business day. Some properties which appear for sale on this web site may subsequently have sold and may no longer be available.