720 Pioneer Road

$324,900 – Wilson, WI

MLS#: 1597105

Active

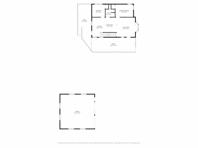
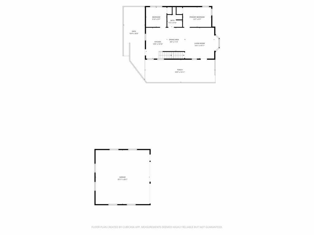
All 3 levels of this 4 bedroom, 3 bath home have been completely updated. Main floor features open kitchen/dining/living room area plus two bedrooms and a 3/4 bath. Upper-level primary bedroom suite includes full bath with jet tub and tile surround plus a walk-in closet. Lower level has 4th bedroom, ¾ bath, laundry and unfinished rec area with range, sink, cabinet and counter space. Outside has a large wrap around deck, two-car detached garage plus additional insulated shop and 3 acres for whatever hobby you have!

TOUR THIS PROPERTY

County: 

St Croix

School: 

Glenwood City

Beds: 

4

Baths F/H: 

1/2

Abv Grd: 

1,465 sq. ft.

Blw Grd: 

175 sq. ft.

Year Built: 

1920

Age: 

105 Years

Style: 

2

Type: 

Single Family Residence

Garage: 

2 Car Car

Lot Size: 

0 x 0

Acres: 

3.21

Taxes: 

$1,641

Tax Year: 

2024

Property Features

Basement: Full
Cooling: Central Air
Electric: Circuit Breakers
Fireplace: N
Foundation: Poured
Heating: Forced Air
Out Buildings: Workshop
Patio/Deck: Deck
Sewer Service: Holding Tank, Septic Tank
Water Service: Private, Well
Zoning: Residential

Room Properties

Room

 

Size

 

Level

Living Room

 

14 x 15

 

MAIN

Kitchen

 

14 x 18

 

MAIN

Bedroom #1

 

9 x 12

 

LOWER

Bedroom #2

 

9 x 10

 

MAIN

Bedroom #3

 

9 x 13

 

MAIN

Bedroom #4

 

14 x 20

 

UPPER

Includes
Dryer, Microwave, Oven, Range, Refrigerator, Washer

Directions
Highway 12 to Hersey, north on Pioneer Rd

Legal
Long legal

Listing Agent
Jim Helmer

Listing Agency
Westconsin Realty LLC

Loading Map...

View Larger Map »

Click for a larger view.
Wilson Residential Real Estate Wilson Residential Real Estate Wilson Residential Real Estate Wilson Residential Real Estate Wilson Residential Real Estate Wilson Residential Real Estate Wilson Residential Real Estate Wilson Residential Real Estate Wilson Residential Real Estate Wilson Residential Real Estate Wilson Residential Real Estate Wilson Residential Real Estate Wilson Residential Real Estate Wilson Residential Real Estate Wilson Residential Real Estate Wilson Residential Real Estate Wilson Residential Real Estate Wilson Residential Real Estate Wilson Residential Real Estate Wilson Residential Real Estate Wilson Residential Real Estate Wilson Residential Real Estate Wilson Residential Real Estate Wilson Residential Real Estate Wilson Residential Real Estate Wilson Residential Real Estate Wilson Residential Real Estate Wilson Residential Real Estate Wilson Residential Real Estate Wilson Residential Real Estate Wilson Residential Real Estate

The data relating to real estate for sale on this web site comes in part from the Internet Data Exchange program of the NW WI MLS. Real estate listings held by brokerage firms other than Haselwander Real Estate are marked with the NW WI MLS icon.

The information, provided by seller, listing broker, and other parties, may not have been verified.

DISCLAIMER: This information is provided exclusively for consumers' personal, non-commercial use and may not be used for any purpose other than to identify prospective properties consumers may be interested in purchasing.

This data is updated every business day. Some properties which appear for sale on this web site may subsequently have sold and may no longer be available.