XXX Deerpath Road

$279,999 – Danbury, WI

MLS#: 1591947

Active

Discover the rustic charm of the Aspen model at Timberland Cottages, boasting 1020 sq ft of cozy living space. This captivating cottage boasts 2 bedrooms, 1 bathroom, and a full kitchen. The gleaming stainless steel appliances, black fixtures/hardware, and granite countertops create a warm, inviting atmosphere. Immerse yourself in the serene beauty of the great outdoors from your private sanctuary. Come experience the Voyager Village lifestyle today! Price of home includes $6000 lot allowance. Lots priced higher will have difference added to construction allowance.

TOUR THIS PROPERTY

County: 

Burnett

School: 

Webster

Beds: 

2

Baths F/H: 

1/0

Abv Grd: 

1,020 sq. ft.

Year Built: 

2025

Age: 

1 Years

Style: 

1

Type: 

Single Family Residence

Garage: 

2 Car Car

Lot Size: 

0 x 0

Acres: 

0.62

Taxes: 

$27

Tax Year: 

2024

Property Features

Basement: None
Cooling: Ductless
Electric: Circuit Breakers
Fireplace: N
Foundation: Poured
Heating: Baseboard
Patio/Deck: Open, Porch
Sewer Service: Septic Tank
Water Service: Private, Well
Zoning: Residential

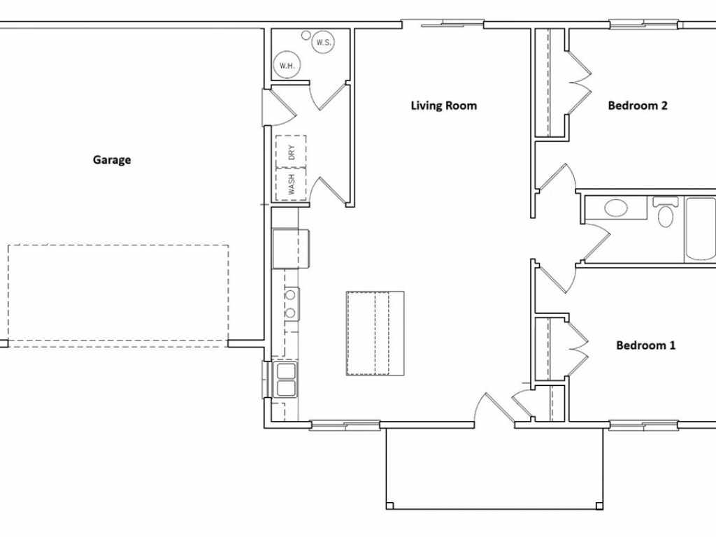
Room Properties

Room

 

Size

 

Level

Living Room

 

13.50 x 12

 

MAIN

Dining Room

 

11 x 12

 

MAIN

Kitchen

 

17 x 8

 

MAIN

Bedroom #1

 

12 x 12

 

MAIN

Bedroom #2

 

12.50 x 12

 

MAIN

Bathroom #1

 

5.50 x 10.50

 

MAIN

Includes
Dishwasher, Electric Water Heater, Microwave, Oven, Range, Refrigerator

Directions
WIS-77, R on Lakes Dr, L on Lake 26 Rd, R on Deerpath Road

Listing Agent
Shannon Mcdonough

Listing Agency
Keller Williams Premier Realty/Vadnais

Loading Map...

View Larger Map »

Click for a larger view.
Danbury Residential Real Estate Danbury Residential Real Estate Danbury Residential Real Estate Danbury Residential Real Estate Danbury Residential Real Estate Danbury Residential Real Estate Danbury Residential Real Estate Danbury Residential Real Estate Danbury Residential Real Estate Danbury Residential Real Estate Danbury Residential Real Estate Danbury Residential Real Estate Danbury Residential Real Estate Danbury Residential Real Estate Danbury Residential Real Estate

The data relating to real estate for sale on this web site comes in part from the Internet Data Exchange program of the NW WI MLS. Real estate listings held by brokerage firms other than Haselwander Real Estate are marked with the NW WI MLS icon.

The information, provided by seller, listing broker, and other parties, may not have been verified.

DISCLAIMER: This information is provided exclusively for consumers' personal, non-commercial use and may not be used for any purpose other than to identify prospective properties consumers may be interested in purchasing.

This data is updated every business day. Some properties which appear for sale on this web site may subsequently have sold and may no longer be available.